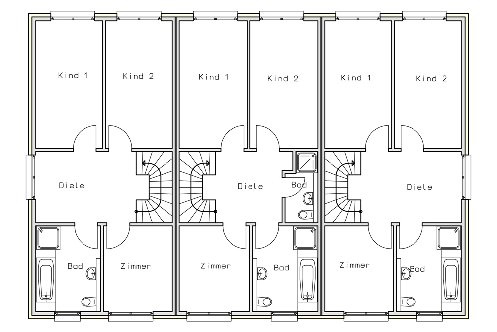
REIHENHAUS
Hamburg Volksdorf 4
«ZURÜCK